Leírás

Csak a Komplexnél!

Komárom-Esztergom Vármegyében Tatabányán, a Panoráma-lakóparkban, új, 4 családi házas beruházás veszi kezdetét!

Az építkezés 2026 áprilisában kezdődik ( időjárásfüggő ) és várhatóan 2027 harmadik negyedévében éri el a kulcsrakész állapotot.

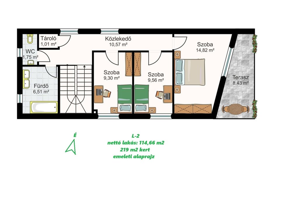
Ez a hirdetés az L-2-es ingatlant mutatja be részleteiben, de a projekt minden családi háza azonos időben épül. A következő ingatlanok elérhetők:

L-1-es; 83,46 m2 nettó lakótér+terasz+erkély, 217 m2 kert: 89,9 M Ft.-

L-2-es; 114,66 m2 nettó lakótér+terasz+erkély, fedett parkoló, garázs, tároló, 219 m2 kert: 129,75 M Ft.-

L-3-as; 94,24 m2 nettó lakótér+terasz+erkély, fedett parkoló, garázs, tároló, 259 m2 kert: 105,9 M Ft.-

L-4-es; 114,78 m2 nettó lakótér+terasz+erkély, fedett parkoló, garázs, tároló, 580 m2 kert: 137 M Ft.-

A családi házak csodás panorámával a Gerecse-hegységre, – illetve Tatabánya fő látványosságára – a Kő-hegyen lévő, Turul-emlékműre néznek!

A teljesség igény nélkül, a fontosabb eligazodási adatokat, idézem a műszaki leírásból:

– Alapozás:
Humuszos földréteg letolása (kb. 10-15 cm) után 90 cm széles és a rendezett
terepszint alá minimum 2,0 m mély kútalapok kerülnek kialakításra.
A pontalapokra 25 cm-es vasbeton lemezek ülnek rá.
Pontos kialakítás az építész és statikus tervek alapján.

– Vízszigetelés:
A padló és fal talajnedvesség ellen 1 rétegű VILLAS E-G 4 F/K bitumenes lemezből
készült szigetelést kap. Előtte a felületet portalanítani majd kellősíteni szükséges.
A külső falaknál a vízszigetelést fel kell hajtani min. 25-30 cm magasságban.

– Teherhordó falak:
A teherhordó külső falak 30 cm vtg. POROTHERM 30 N+F tégla falazóelemből
készülnek szükség esetén pillérekkel kiegészítve.

– Födém, belmagasság:
A lakások belmagassága 2,80 m és 2,55 m. A fesztávolság 5,00 m.
A garázsok belmagassága 2,45 m. A fesztávolság 3,90 m.
Az emeleti vasbeton koszorúra faszerkezetes előregyártott rácsostető fedélszerkezet
kerül kialakításra.

– Nyílászárók:
SALAMANDER SL 76 / HEVESTHERM OPTIMA 76
– A” kategóriás 5 légkamrás műanyag ablak profil UW stabil keverékből
– 76mm vastag tok és 82 mm vastag szárnyból álló 3 rétegű üvegezéssel

– Hőszigetelés:
A talajon fekvő padló lépésálló Austrotherm AT-N100-es hőszigetelést kap 12 cm
vtg-ban, mely 12 cm magasságban elhelyezésre kerül a szegélyek mentén, az
aljzatbeton oldalán. A lábazat 20 cm AUSTROTHERM EXPERT hőszigetelést kap. A
padlás 15+ 15 cm kőzetgyapot hőszigetelést kap a gerendák között, és a gerendákra
fektetve. A járhatóságot a födémen biztosítani kell párnafákra erősített ritkított
pallóterítéssel. A főfalak 20 cm vastag AUSTROTHERM AT-H80 homlokzati
hőszigetelést kapnak.

– Burkolatok:
A padlóburkolatok ragasztott greslap és laminált parketta. Az aljzatot kellősíteni kell
Pormex Rapiddal.
A fedett belépő, fedett parkoló és a belső út térkővel burkolt.
A terasz ragasztott fagyálló burkolatot kap. A garázs simított aljzatbetont.
A vizes helyiségekben min. 2,10 m magasságig csempeburkolat készül.
A mennyezet Rigips gipszkartonból készül 2 rtg-ben, glettelve, festve.
A belső felületek vakoltak, gletteltek, festettek.

Az ingatlanok kifizetése, %-os rendszerben, csak az adott, készültségi szint elvégzése után történik!

További részletes tájékoztatás, az Építész műszaki leírás bemutatása, személyesen a Komplex Ingatlanközvetítő irodájában, vagy a Bóróka utcai helyszínen is lehetséges!

A kivitelező cég leinformálható, számos befejezett projekt , fűződik a nevükhöz!

Esetleges hiteligényét – pl. Otthon Start program – gyorsan, pontosan, profi banki háttérrel intézzük!

Köszönöm, h megtekintette a hirdetést!

Amennyiben további kérdései lennének, vagy konkrét vásárlási szándékát jelezné, hétvégén is elérhető vagyok!

S.L.

Cím

Ismertetés

  • Ingatlan azonosító (ID) 4293
  • Ár 129 750 000Ft
  • Ingatlan típusa
  • Ingatlankínálat típusa
  • Szoba 4
  • Építés éve 2027
  • Méret 114 m2
  • Telekméret 219 m2
  • Garázs 2
  • Városrész Panoráma lakópark
  • Vármegye Komárom-Esztergom megye

Kapcsolat

Sándor László

Ingatlanügynök

+36-70/977-05-70
Egyéb ingatlan
Név megadása.
Telefonszám megadása.
Please enter your valid Email!
Ide írjuk az üzenetet.

Hasonló ingatlanok

Komárom-Esztergom megye – Tatabánya – Óváros
Eladó
4 nap telt el a közzététel óta

✨MOST KELL LÉPNED – EZ A LAKÁS NEM VÁR SOKÁIG! ✨ Tatabánya Óváros szívében most rád vár egy remek lehetőség! Eladó egy 52 m²-es, 3. emeleti téglalakás, amely két tágas, világos szobájával ideális választás akár első otthonnak, akár befektetésnek. Miért különleges? ✔ Praktikus elrendezés – könnyen alakítható a saját ízlésedre ✔ Napfényes terek – kellemes, […]

52 m2 Méret
Komárom-Esztergom megye – Tatabánya – Újváros
Eladó
5 nap telt el a közzététel óta

Komplex Ingatlan kínálatában eladó egy földszinti, egy szobás lakás Tatabányán, az Ifjúság úton. A 38 m2-es lakás egy 4 emeletes téglaépület földszintjén helyezkedik el. Az ingatlan részleges felújításon esett át. Az ablakkal rendelkező fürdőszoba teljesen megújult, megtörtént a burkolatok, szaniterek cseréje. A szobában a régi fa parkettát meghagyták, felcsiszolták, lakkozták. A konyhában is új bútor […]

38 m2 Méret
Komárom-Esztergom megye – Tatabánya – Dózsakert
Eladó
6 nap telt el a közzététel óta

Tatabányán közvetlenül a népszerű Sétáló utcában, első emeleti, 2 szoba + hallos lakás keresi új tulajdonosát. Az ingatlan Tatabánya Dózsakertben, kiemelten frekventált helyen található. Kíváló a közlekedés, de gyalogosan is gyorsan elérhetőek gimnáziumok, óvodák, általános iskolák, a kórház, az összes szakrendelő, és rengeteg élelmiszerbolt, patika, és különféle üzletek. A vasútállomás, és forgalmas buszmegállók is közel […]

54 m2 Méret
Komárom-Esztergom megye – Oroszlány – Újváros
Eladó
6 nap telt el a közzététel óta

???? MODERN ÉLETTÉR! AMERIKAI KONYHÁS NAPPALI + 2 HÁLÓ OROSZLÁNY KEDVELT RÉSZÉN! Oroszlány nyugodt, csendes részén eladó egy 41 m²-es, teljesen felújított, magasföldszinti lakás, amely ideális választás fiatal pároknak, kisebb családoknak vagy akár befektetésnek is! Az ingatlan praktikusan átalakított, így egy modern amerikai konyhás nappali + 2 külön nyíló hálószoba került kialakításra – maximális helykihasználás, […]

41 m2 Méret