Leírás

Csak a Komplex Ingatlan kínálatában:
Tatabányán, a Panoráma lakóparkban, családi házas környezetben, 4 db új építésű, modern, energiatakarékos lakóingatlan kerül megépítésre, melyek közül most még lehet választani.
Az építkezés 2026. január-február hónapban kezdődik, az ingatlanok kulcsrakész átadásának várható időpontja 2027. harmadik negyedéve.
Az ingatlanok különböző méretűek, eltérő telekhányaddal rendelkeznek, ezáltal az áruk is változó:
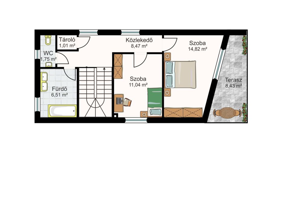
L1 ház: 83,46 m2 nettó lakótér + terasz + erkély, 217 m2 kert: 89,9 M Ft
L2 ház: 114,66 m2 nettó lakótér + terasz + erkély, fedett parkoló, garázs, tároló, 219 m2 kert: 129,75 M Ft
L3 ház: 94,24 m2 nettó lakótér + terasz + erkély, fedett parkoló, garázs, tároló, 259 m2 kert: 105,9 M Ft
L4 ház: 114,78 m2 nettó lakótér + terasz + erkély, fedett parkoló, garázs, tároló, 580 m2 kert: 137 M Ft
Jelen hirdetési ár az L1 sz. ingatlanra vonatkozik.
A házak kétszintesek, egymástól elkülönülnek, csak a garázs köti össze őket, így nincs közös fal.
Hőszivattyús fűtési rendszer, 5 légkamrás műanyag nyílászárók, átgondolt tervezés jellemzi a lakásokat. Pontos műszaki tartalmat személyes találkozó keretében tudok átadni, illetve kérésre küldeni.
Megbízható, referenciával rendelkező beruházó/kivitelező.
Keressen bizalommal, kösse le most az Ön számára legmegfelelőbb ingatlant, hogy jövő évben beköltözhessen álmai otthonába!

Cím

Ismertetés

  • Ingatlan azonosító (ID) 4135
  • Ár 89 900 000Ft
  • Ingatlan típusa
  • Ingatlankínálat típusa
  • Szoba 3
  • Építés éve 2026
  • Méret 84 m2
  • Telekméret 217 m2
  • Garázs 0
  • Városrész Panoráma lakópark
  • Vármegye Komárom-Esztergom megye

Kapcsolat

Békefi Andrea

Ingatlanügynök

+36-20/250-32-08
Egyéb ingatlan
Név megadása.
Telefonszám megadása.
Please enter your valid Email!
Ide írjuk az üzenetet.

Hasonló ingatlanok

Komárom-Esztergom megye – Tatabánya – Óváros
Eladó
4 nap telt el a közzététel óta

✨MOST KELL LÉPNED – EZ A LAKÁS NEM VÁR SOKÁIG! ✨ Tatabánya Óváros szívében most rád vár egy remek lehetőség! Eladó egy 52 m²-es, 3. emeleti téglalakás, amely két tágas, világos szobájával ideális választás akár első otthonnak, akár befektetésnek. Miért különleges? ✔ Praktikus elrendezés – könnyen alakítható a saját ízlésedre ✔ Napfényes terek – kellemes, […]

52 m2 Méret
Komárom-Esztergom megye – Tatabánya – Újváros
Eladó
5 nap telt el a közzététel óta

Komplex Ingatlan kínálatában eladó egy földszinti, egy szobás lakás Tatabányán, az Ifjúság úton. A 38 m2-es lakás egy 4 emeletes téglaépület földszintjén helyezkedik el. Az ingatlan részleges felújításon esett át. Az ablakkal rendelkező fürdőszoba teljesen megújult, megtörtént a burkolatok, szaniterek cseréje. A szobában a régi fa parkettát meghagyták, felcsiszolták, lakkozták. A konyhában is új bútor […]

38 m2 Méret
Komárom-Esztergom megye – Tatabánya – Dózsakert
Eladó
6 nap telt el a közzététel óta

Tatabányán közvetlenül a népszerű Sétáló utcában, első emeleti, 2 szoba + hallos lakás keresi új tulajdonosát. Az ingatlan Tatabánya Dózsakertben, kiemelten frekventált helyen található. Kíváló a közlekedés, de gyalogosan is gyorsan elérhetőek gimnáziumok, óvodák, általános iskolák, a kórház, az összes szakrendelő, és rengeteg élelmiszerbolt, patika, és különféle üzletek. A vasútállomás, és forgalmas buszmegállók is közel […]

54 m2 Méret
Komárom-Esztergom megye – Oroszlány – Újváros
Eladó
6 nap telt el a közzététel óta

???? MODERN ÉLETTÉR! AMERIKAI KONYHÁS NAPPALI + 2 HÁLÓ OROSZLÁNY KEDVELT RÉSZÉN! Oroszlány nyugodt, csendes részén eladó egy 41 m²-es, teljesen felújított, magasföldszinti lakás, amely ideális választás fiatal pároknak, kisebb családoknak vagy akár befektetésnek is! Az ingatlan praktikusan átalakított, így egy modern amerikai konyhás nappali + 2 külön nyíló hálószoba került kialakításra – maximális helykihasználás, […]

41 m2 Méret