Leírás

Új építésű családi ház eladó Veszprémvarsányban

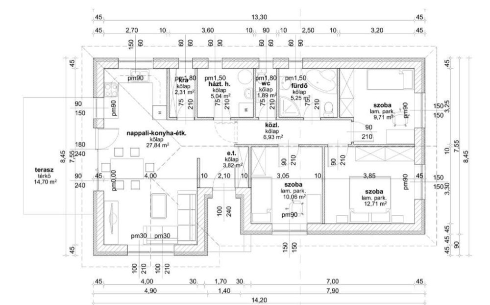
A Komplex Ingatlaniroda megvételre kínálja Veszprémvarsány csendes, családi házas övezetében ezt az új építésű családi házat, amely egy 812 m²-es saroktelken helyezkedik el, így két utcáról is megközelíthető.
A projekt különlegessége, hogy 4 különböző alaprajz közül választhat, így az ingatlan a leendő tulajdonos élethelyzetéhez és igényeihez igazítható. A hirdetésben szereplő ár emelt szintű fűtéskész állapotra vonatkozik, ami a választott műszaki tartalom függvényében változhat, így lehetőséget ad az egyedi igények szerinti kialakításra is.

Főbb jellemzők
• Ingatlan típusa: új építésű családi ház
• Elhelyezkedés: családi házas övezet, falusias jelleg
• Telek mérete: 812 m², saroktelek
• Alaprajz: 4 választható kialakítás
• Készültségi szint: emelt szintű fűtéskész

Az ingatlan ideális választás azok számára, akik új, modern otthont keresnek nyugodt környezetben, ugyanakkor fontos számukra az alakíthatóság és az értékálló műszaki megoldások.

Ez a lehetőség nem kompromisszum, hanem egy rugalmasan alakítható, hosszú távra tervezhető otthon megvalósítása.

További információért és az elérhető alaprajzok megtekintéséért keressen bizalommal!

Irodánk díjmentesen segít hitel- és támogatás ügyintézés során, hogy Ön könnyedén megtalálja a legjobb pénzügyi megoldásokat.

Cím

Ismertetés

  • Ingatlan azonosító (ID) 4153
  • Ár 75 000 000Ft
  • Ingatlan típusa
  • Ingatlankínálat típusa
  • Szoba 1
  • Építés éve 2026
  • Méret 88 m2
  • Telekméret 812 m2
  • Garázs 0
  • Vármegye Győr-Moson-Sopron megye

Kapcsolat

Hasonló ingatlanok

Győr-Moson-Sopron megye – Levél
Eladó
5 hónap telt el a közzététel óta

Mosonmagyaróvártól 10 percre, az osztrák szlovák határtól 10 percnyire, Levélen kínálunk megvételre új építésű társasházi lakásokat. A jelen hirdetésben szereplő földszinti lakás 36,58 m2 nettó alapterülettel, 34,2 m2 kertkapcsolattal, valamint 8,3 m2 terasszal rendelkezik. Elrendezése egy amerikai konyhás nappali, egy hálószoba, fürdőszoba és külön wc. A társasház a mai kor igényeinek megfelelő külsővel és műszaki […]

36 m2 Méret
Győr-Moson-Sopron megye – Levél
Eladó
5 hónap telt el a közzététel óta

Eladó új építésű lakás Levélen – 2026-os átadással Levélen, csendes és folyamatosan fejlődő környezetben eladó egy 60,49 m²-es, tágas, modern elrendezésű lakás két hálószobával és egy világos nappalival. A lakáshoz tartozik egy 6,75 m²-es erkély, amely kellemes szabadtéri pihenést biztosít. Ideális választás azoknak, akik kényelmes, jól kihasznált terekkel rendelkező új otthont keresnek. A lakás jellemzői: […]

60 m2 Méret
Győr-Moson-Sopron megye – Sopron – Belváros
Eladó
5 hónap telt el a közzététel óta

Igényes, felújított sorházi lakás Eladóvá vált egy 2000-ben épült, gondosan karbantartott, saját kerttel rendelkező, kiváló ár-érték arányú sorházi lakás, amely valódi békét és minőségi életteret kínál egy igényes, rendezett, szépen gondozott közös udvarban, barátságos környezetben. Főbb jellemzők: • 62 m² lakótér, kiváló elosztással: o amerikai konyhás, világos nappali o az emeleten 2 külön nyíló szoba […]

63 m2 Méret
Győr-Moson-Sopron megye – Mosonmagyaróvár – Ipatelep
Eladó
15 óra telt el a közzététel óta

???? Felújított családi ház nagy telekkel Mosonmagyaróváron – kiváló helyen! Mosonmagyaróvár kedvelt, jól megközelíthető részén eladó egy 106 m²-es, teljesen felújított családi ház, 1113 m²-es, megosztható telken. A ház 2024-ben teljes körű felújításon esett át: ✔ új tető ✔ teljes közműhálózat csere ✔ modern kondenzációs kazán ✔ korszerű nyílászárók ✔ 15 cm szigetelés Helyiségek: * […]

106 m2 Méret