Leírás

Napsugár Lakópark – új otthon születik

A Napsugár Lakóparkban olyan új építésű lakások készülnek, amelyek hosszú távon is kényelmes és élhető otthont biztosítanak.

A projekt két különálló épületben valósul meg, átgondolt lakásmixszel, modern szemlélettel és jövőbe mutató koncepcióval.

Az értékesítés első szakasza különösen kedvező lehet azok számára, akik első otthonukat keresik, és szeretnének már a kezdetektől részesei lenni egy minőségi fejlesztésnek.

Tervezett kulcsrakész átadás: 2027 II. negyedév

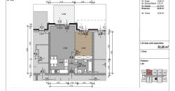
Jelen hirdetésben szereplő fölszinti lakás 46,85 m2 hasznos alapterülettel rendelkezik, elosztását tekintve rendelkezik egy amerikai konyhás nappalival, hálószobával, egy fürdőszobával, valamint egy 6,8 m2 nagyságú terasszal.

Minőségi kivitelezés:
Fűtés: gáz+ hőszivattyús hibrid rendszer padlófűtéssel, lakásonként egyedi mérőórával, klíma előkészítéssel
Nyílászárók: 3 rétegű, 5 légkamrás hőszigetelt üvegezés
Hőszigetelés: 15 cm EPS rendszer
Szerkezet: PTH30 N+F falazat, monolit vasbeton födém

A feltüntetett vételár, fűtéskész állapotra vonatkozik. Igény esetén a kivitelező vállalja a kulcsrakész befejezést is. Tároló és parkoló az ingatlanhoz külön vásárolható!

Amennyiben felkeltette ez a hirdetés az érdeklődését vagy további kérdései vannak, akkor keressen bizalommal.

Irodánk készséggel segít hitel, támogatások díjmentes ügyintézésében is.

Cím

Ismertetés

  • Ingatlan azonosító (ID) 4199
  • Ár 57 900 000Ft
  • Ingatlan típusa
  • Ingatlankínálat típusa
  • Szoba 2
  • Építés éve 2026
  • Méret 53 m2
  • Garázs 0
  • Vármegye Győr-Moson-Sopron megye

Kapcsolat

Borbély Róbert

Ingatlanügynök

+36-70/803-06-83
Egyéb ingatlan
Név megadása.
Telefonszám megadása.
Please enter your valid Email!
Ide írjuk az üzenetet.

Hasonló ingatlanok

Győr-Moson-Sopron megye – Levél
Eladó
5 hónap telt el a közzététel óta

Mosonmagyaróvártól 10 percre, az osztrák szlovák határtól 10 percnyire, Levélen kínálunk megvételre új építésű társasházi lakásokat. A jelen hirdetésben szereplő földszinti lakás 36,58 m2 nettó alapterülettel, 34,2 m2 kertkapcsolattal, valamint 8,3 m2 terasszal rendelkezik. Elrendezése egy amerikai konyhás nappali, egy hálószoba, fürdőszoba és külön wc. A társasház a mai kor igényeinek megfelelő külsővel és műszaki […]

36 m2 Méret
Győr-Moson-Sopron megye – Levél
Eladó
5 hónap telt el a közzététel óta

Eladó új építésű lakás Levélen – 2026-os átadással Levélen, csendes és folyamatosan fejlődő környezetben eladó egy 60,49 m²-es, tágas, modern elrendezésű lakás két hálószobával és egy világos nappalival. A lakáshoz tartozik egy 6,75 m²-es erkély, amely kellemes szabadtéri pihenést biztosít. Ideális választás azoknak, akik kényelmes, jól kihasznált terekkel rendelkező új otthont keresnek. A lakás jellemzői: […]

60 m2 Méret
Győr-Moson-Sopron megye – Sopron – Belváros
Eladó
5 hónap telt el a közzététel óta

Igényes, felújított sorházi lakás Eladóvá vált egy 2000-ben épült, gondosan karbantartott, saját kerttel rendelkező, kiváló ár-érték arányú sorházi lakás, amely valódi békét és minőségi életteret kínál egy igényes, rendezett, szépen gondozott közös udvarban, barátságos környezetben. Főbb jellemzők: • 62 m² lakótér, kiváló elosztással: o amerikai konyhás, világos nappali o az emeleten 2 külön nyíló szoba […]

63 m2 Méret
Győr-Moson-Sopron megye – Mosonmagyaróvár – Ipatelep
Eladó
15 óra telt el a közzététel óta

???? Felújított családi ház nagy telekkel Mosonmagyaróváron – kiváló helyen! Mosonmagyaróvár kedvelt, jól megközelíthető részén eladó egy 106 m²-es, teljesen felújított családi ház, 1113 m²-es, megosztható telken. A ház 2024-ben teljes körű felújításon esett át: ✔ új tető ✔ teljes közműhálózat csere ✔ modern kondenzációs kazán ✔ korszerű nyílászárók ✔ 15 cm szigetelés Helyiségek: * […]

106 m2 Méret