Leírás

Új építésű lakások és üzlethelyiségek Jánossomorja központjában
Eladó Jánossomorján, frekventált elhelyezkedéssel egy vadonatúj, 13 lakásos társasház, melyhez a földszinten 2 üzlethelyiség is tartozik. A projekt a városias környezethez illeszkedve, modern és energiahatékony megoldásokkal valósul meg.

Lakások

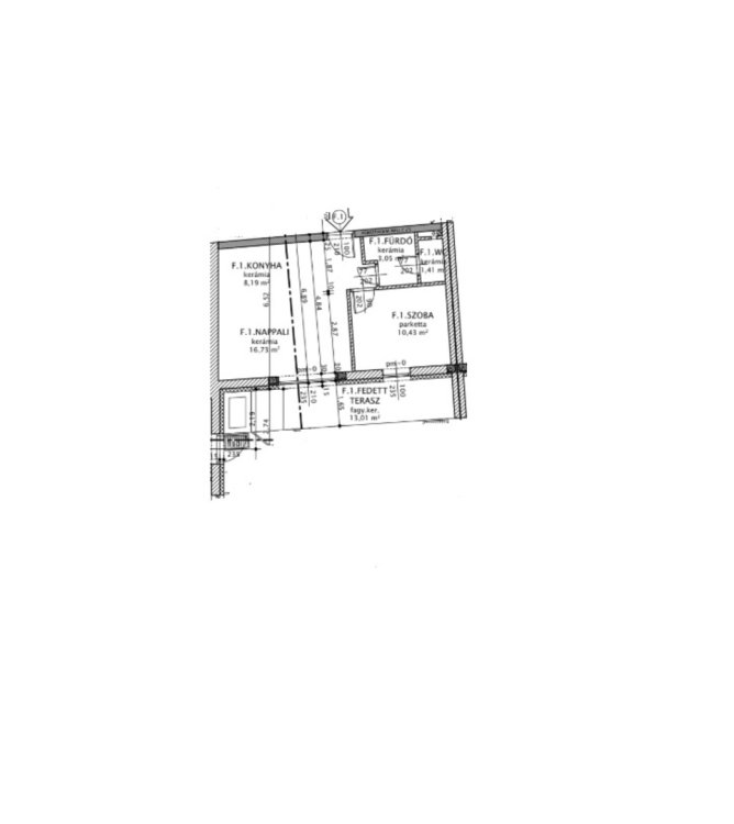
39–64 m²-es, jól kihasznált alapterületű lakások

Amerikai konyhás nappali + 1 szoba elosztás, fedett terasz vagy erkély minden lakáshoz

Padlófűtés és mennyezeti hűtés hőszivattyús rendszerrel

Modern műanyag nyílászárók, háromrétegű üvegezéssel

Igényes homlokzati kialakítás, bézs és halványbarna színvilágban

Üzlethelyiségek

45,99 m² és 31,79 m²-es alapterületű utcafronti üzletek, raktárral és szociális helyiséggel

Kiváló lehetőség kereskedelmi vagy szolgáltató tevékenységhez

Parkolás és tárolás

18 db felszíni parkolóhely

Kerékpártároló biztosított

Környezet és elhelyezkedés

A társasház Jánossomorja központi részén épül,

Az osztrák határ közelsége miatt ideális választás ingázók számára is

A kivitelező számos referencia munkával rendelkezik Győr-Moson-Sopron vármegyében.

1 db gépkocsibeálló vásárlása szükséges, melynek vételára 2.000.000,-Ft.

Teljes műszaki tartalom és kivitelezői referenciák irodánkban megtekinthető.

Hitel- és CSOK-ügyintézésben díjmentesen segítünk ügyfeleinknek, hogy a legkedvezőbb feltételekkel vásárolhassák meg álmaik otthonát!

Cím

Ismertetés

  • Ingatlan azonosító (ID) 4262
  • Ár 42 609 800Ft
  • Ingatlan típusa
  • Ingatlankínálat típusa
  • Szoba 2
  • Építés éve 2026
  • Méret 39 m2
  • Garázs 1
  • Vármegye Győr-Moson-Sopron megye

Kapcsolat

Dömötör Balázs

Ingatlanügynök

+36-30/398-98-38
Egyéb ingatlan
Név megadása.
Telefonszám megadása.
Please enter your valid Email!
Ide írjuk az üzenetet.

Hasonló ingatlanok

Győr-Moson-Sopron megye – Levél
Eladó
5 hónap telt el a közzététel óta

Mosonmagyaróvártól 10 percre, az osztrák szlovák határtól 10 percnyire, Levélen kínálunk megvételre új építésű társasházi lakásokat. A jelen hirdetésben szereplő földszinti lakás 36,58 m2 nettó alapterülettel, 34,2 m2 kertkapcsolattal, valamint 8,3 m2 terasszal rendelkezik. Elrendezése egy amerikai konyhás nappali, egy hálószoba, fürdőszoba és külön wc. A társasház a mai kor igényeinek megfelelő külsővel és műszaki […]

36 m2 Méret
Győr-Moson-Sopron megye – Levél
Eladó
5 hónap telt el a közzététel óta

Eladó új építésű lakás Levélen – 2026-os átadással Levélen, csendes és folyamatosan fejlődő környezetben eladó egy 60,49 m²-es, tágas, modern elrendezésű lakás két hálószobával és egy világos nappalival. A lakáshoz tartozik egy 6,75 m²-es erkély, amely kellemes szabadtéri pihenést biztosít. Ideális választás azoknak, akik kényelmes, jól kihasznált terekkel rendelkező új otthont keresnek. A lakás jellemzői: […]

60 m2 Méret
Győr-Moson-Sopron megye – Sopron – Belváros
Eladó
5 hónap telt el a közzététel óta

Igényes, felújított sorházi lakás Eladóvá vált egy 2000-ben épült, gondosan karbantartott, saját kerttel rendelkező, kiváló ár-érték arányú sorházi lakás, amely valódi békét és minőségi életteret kínál egy igényes, rendezett, szépen gondozott közös udvarban, barátságos környezetben. Főbb jellemzők: • 62 m² lakótér, kiváló elosztással: o amerikai konyhás, világos nappali o az emeleten 2 külön nyíló szoba […]

63 m2 Méret
Győr-Moson-Sopron megye – Mosonmagyaróvár – Ipatelep
Eladó
15 óra telt el a közzététel óta

???? Felújított családi ház nagy telekkel Mosonmagyaróváron – kiváló helyen! Mosonmagyaróvár kedvelt, jól megközelíthető részén eladó egy 106 m²-es, teljesen felújított családi ház, 1113 m²-es, megosztható telken. A ház 2024-ben teljes körű felújításon esett át: ✔ új tető ✔ teljes közműhálózat csere ✔ modern kondenzációs kazán ✔ korszerű nyílászárók ✔ 15 cm szigetelés Helyiségek: * […]

106 m2 Méret